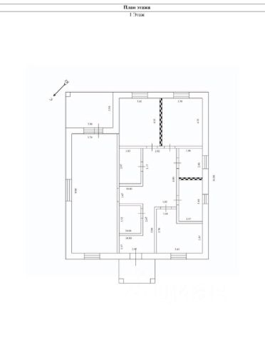
Арт. 134391297 Доверяя нам, Вы гарантировано получаете только реальные объекты. Одноэтажный современный дом в Белоозерском, с. Юрасово — дом для комфортной жизни. Предлагаем вашему вниманию новый одноэтажный дом в тихом, зелёном и перспективном районе. Этот дом — идеальный выбор для тех, кто ценит качество строительства, простор, свежий воздух и уют загородной жизни без отказа от городского комфорта. Дом расположен на участке 9 соток (ИЖС), имеет продуманную планировку, выполнен из надежных материалов и полностью готов к тому, чтобы стать вашим новым местом силы. Одноэтажный дом 120 м² — WHITE BOX Идеальный вариант для тех, кто хочет реализовать собственный дизайн. Просторные комнаты, большие окна, много света — ждет именно ваших решений. Лёгкая, удобная планировка и высокие потолки создают настоящую атмосферу уюта. Качественное и надежное строительство: Каждый дом построен по современным стандартам с применением долговечных, энергоэффективных материалов: Фундамент: монолитная железобетонная плита 400 мм — максимальная надежность и устойчивость. Стены: газосиликатный блок 300 мм, утепление 50 мм + вент зазор, облицовка кирпичом — красиво, тепло, добротно. Кровля: металлочерепица 0,5 мм, утепление крыши 200 мм, качественная водосточная система. Окна: профили Rehau 70 мм, которые обеспечивают отличную тепло- и шумоизоляцию. Отопление: водяной теплый пол (трубы Rehau), электрический котел. Стяжка пола выполнена, стены отшпаклеванные — идеальная подготовка для чистовой отделки. Дома строились "для себя": нет экономии на материалах, скрытых работах и инженерных узлах. Участок и благоустройство: Дом расположен на ухоженном участке 9 соток, где всё продумано для удобства жизни: Тёплая отмостка вокруг дома — защита от промерзания и долговечность конструкции. Дорожки из брусчатки, аккуратно выложенные по периметру. Два парковочных места, также выложенных брусчаткой — удобно и практично. Крепкий забор: фундамент — железобетонная лента + кирпичные столбы, автоматические откатные ворота — комфорт и безопасность. Участки ровные, правильной формы — идеальны для сада, детской площадки, бани или зоны отдыха. Коммуникации — всё, что нужно для жизни: -Центральное водоснабжение; -Центральная канализация; -Электричество заведено в дом; -Газ — по границе участка (легко подключить) -Коммуникации — официальные, заведены правильно и документально оформлены. Локация: Близость к инфраструктуре Белоозерского делает жизнь комфортной: -магазины -школа и детские сады -остановки транспорта -быстрый выезд на основные дороги. Тихое место для жизни, при этом — удобное и развитое. Почему эти дома — лучший выбор: Одноэтажная планировка — комфорт, безопасность, удобство. Премиум-материалы и надежная конструкция. Участки ИЖС — возможность регистрации. Полная инженерная готовность. white box Красивое, перспективное место!










































































